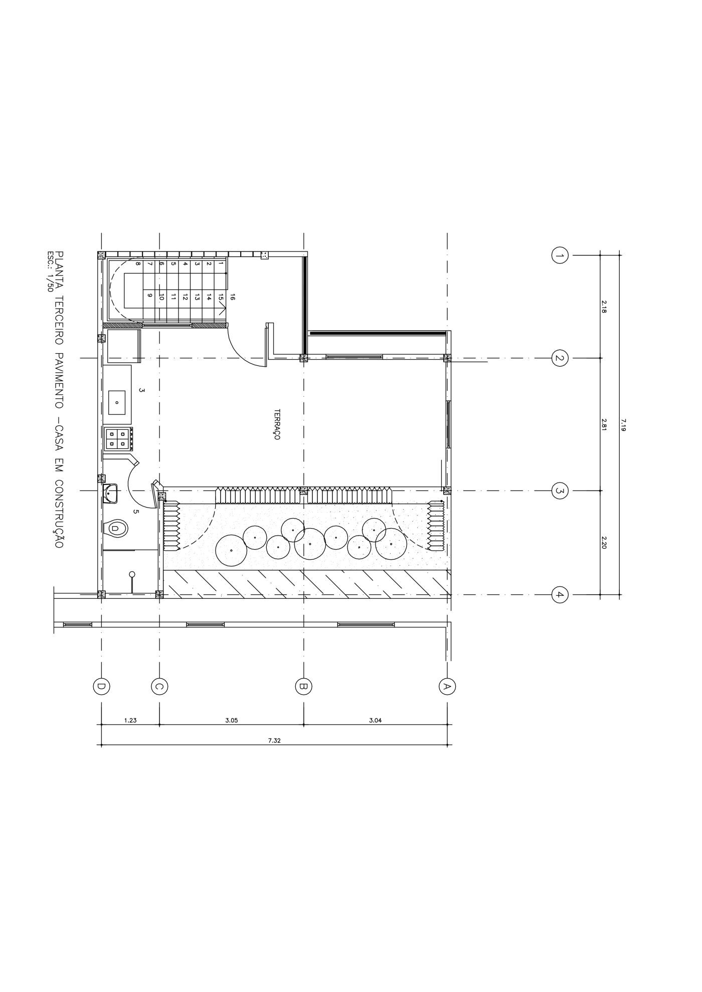
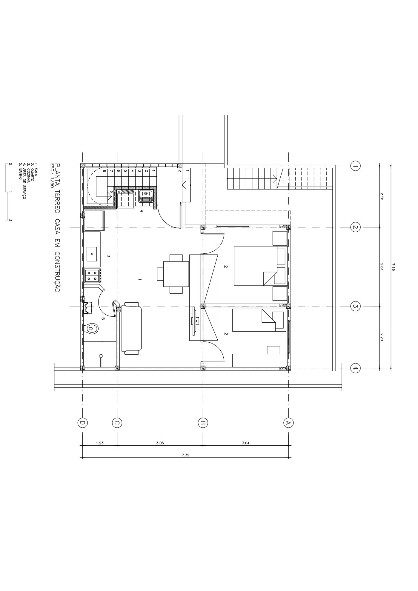
CASA DO ATAIDE

Authors

Authors

Fernando
Botton
Ataide Cerqueira
CAETITE

CASA DO ATAIDE

Authors

Authors

Fernando
Botton
Ataide Cerqueira
CAETITE

Muito mais que uma aula convencional sobre as técnicas da construção civil, este workshop convida o aluno-arquiteto a aprender sobre a construção de casas com moradores locais e com suas necessidades locais. Dará entendimento prático da dinâmica de um pedaço de cidade que hoje virou bairro. Espaço este que gerou,sigue gerando e continuará gerando o que chamamos de cidade. Não podemos mais negar este tipo de forma urbana e construção dentro da cidade de SP.

A idéia é nos juntarmos ao morador, ao profissional, ao estudante. Observar, perceber, anotar, opinar e ensinar. Um trabalho em conjunto e com as ferramentas locais e

Paraisópolis, assim como muitas outras comunidades paulistas, é um bairro urbano que ainda não foi bem compreendido e aceitado. O workshop promovido por urbzbrasil, diferente do que se ensina dentro de uma instituição convencional, tem como objetivo fornecer a oportunidade do aluno aprender um pouco mais sobre a vida urbana, prática esta que acreditamos que será cada vez mais aplicável ao futuro urbano deste país e da maioria das grandes metropoles.

Much more than a conventional lesson on civil construction techniques, this workshop invites the student-architect to learn about building homes with local residents and their local needs. It shall provide a practical understanding to the dynamics of a piece of the city that has nowadays been transformed into a neighbourhood Such a space that has generated, is generating and shall continue to generate what we today call city. We can no longer deny this type of urban form and building within the city of SP.

The idea is to get together with residents, professionals and students. To observe, understand, take notes, provide opinions and teach. Working together and with the use of local tools and

Paraisopolis, as well as many other São Paulo communities, is an urban neighbourhood that is not well understood and accepted. The workshop promoted by urbzbrasil, differing from what is taught in a conventional institution, aims to provide the opportunity for students to learn more about urban life, a practice that we believe will become increasingly more applicable to the urban future of this country and to most major metropolises.