Landing in Dharavi (And trying to figure things out)

Landing in Dharavi (And trying to figure things out)

This is Miriam and Fabio, architectural students at the Polytechnic University of Turin, Italy. We have landed  in Mumbai, more specifically in New Transit Camp, one of the many neighbourhoods of Dharavi.

We will spend almost two months in India, the first one in Mumbai and the second one in Bangalore researching architectural materials, usages and techniques.

As Europeans landing in Mumbai, we experienced culture shock immediately! The research started with  direct exposure to a totally different culture, languages, religions, ways of living, eating… Walking through Dharavi, entering in people’s houses and feeling foreign to everything around is a very special experience.

With URBZ we are in the process of analyzing an incrementally developed structure in Dharavi. We are mapping it in detail and  trying to understand – for instance- how water reaches the second floor, how electricity is distributed, which construction materials are used and how the building was developed and changed through time.

It seems that all we will need is a few simple tools and lots of goodwill. Actually, we have been here for days. We don’t speak Hindi or Marathi (most of the people here don’t  speak English) and is not so simple to enter someone’s house asking questions about their life and home, measuring the small rooms in which they are living and working. That’s why we are starting with the building where URBZ’s office is located. We have been introduced to the neighbours who, although they don’t always understand what we are up to, are very welcoming.

The type of approaches we are used to can’t work over here. We are right now  simply presenting ourselves and our experiences, hoping that the people we talk to reciprocate. We have already learned so much and we are sure that at the end of this experience we will come back with much more.

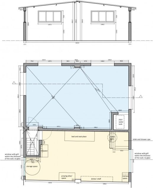
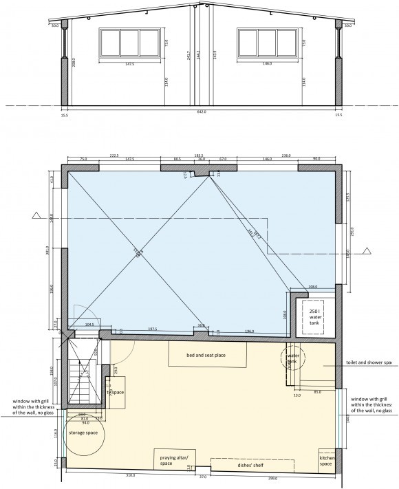
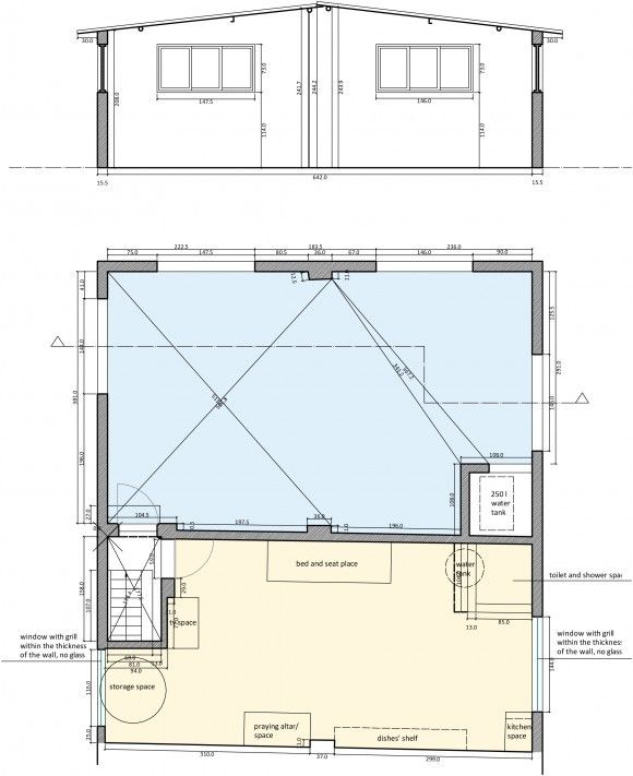
We have illustrated this post with some of the drawings we are currently producing. This is the 3 storey building where the URBZ office is located.

Miriam Bodino and Fabio Colucci