Delta V: Le plan intermédiaire

Authors

Matias
Echanove
Amin
Khosravi
Benoît
Beurret

Delta V: Le plan intermédiaire

Authors

Matias
Echanove
Amin
Khosravi
Benoît
Beurret
Présentation publique à la Maison de Projet de Versoix, le 11 juin 2018.
Présentation publique à la Maison de Projet de Versoix, le 11 juin 2018.

PROCESSUS

Le 11 juin 2018, l’équipe de urbz Genève a présenté son travail sur le plan du futur quartier Lachenal Dégallier (surnommé Delta V) aux habitants de Versoix. (Pour rappel urbz a été mandaté pour produire un projet de quartier participatif par la Ville de Versoix et la République de Genève.)

Nous avons cherché à produire une image directrice reflétant le plus fidèlement possible les principes, le narratif et le programme issus de la première phase du processus participatif qui s’est déroulée entre octobre 2017 et février 2018. Cette première phase a débuté à la mi-octobre, avec un workshop de trois jours auquel une soixantaine d'étudiants, d’habitants et de professionnels ont participé. Elle fut conclue fin février avec une exposition interactive dans la Maison du Projet, espace d’exposition, de réflexion et d’interaction sur le site, ouvert durant tout le processus, permettant à chacun de revisiter les différentes étapes de la démarche et de répondre à notre proposition de programme pour le quartier.

Le 19 décembre 2017 nous avons présenté et validé les grandes orientations et les principes du projet lors d’une séance publique à la salle communale Lachenal. Suite à cela, en janvier, nous avons invité des architectes pendant deux jours dans la Maison du Projet (située sur le site) pour initier une réflexion sur la forme du futur quartier. La plupart de ces invités font partie du réseau urbz et nous avons souvent eu l’occasion de travailler avec eux auparavant. Presque tous étaient déjà présents au workshop de lancement (13-15 octobre 2017). Le workshop professionnel de janvier avec 15 participants invités a généré une grande quantité d'idées et de variantes pour la forme du nouveau quartier. Le deuxième soir, une des variantes remplissant tous les critères et paraissant prometteuse a été sélectionnée par le groupe. C’est cette variante que nous avons étudié et fait évoluer entre mars et juin 2017.

Le travail sur la forme est basé sur le matériel produit pendant le premier workshop, les discussions avec les habitants dans la maison du projet et le grand nombre de feedback que nous avons reçu tout au long du processus de la part de multiples intervenants.

Nous avons aussi pris en compte : 

- la complexité du contexte urbain, le site se trouvant entre un quartier de villas, une école, un cimetière, des voies ferrées et une gare ; 


- la qualité des sols primaires, la topographie du site et plus largement son contexte environnemental ; 


- certains bâtiments qui ne pourront être détruits ; 


- les volontés de chaque propriétaire et les limites parcellaires pour que le projet puisse se faire par étapes ; 


- les contraintes liées à la proximité des voies de chemin de fer et aux nuisances sonores causées par le passage des avions au-dessus du site ; 


- l’obligation de n’avoir que des bâtiments d’usage mixtes (résidentiel ainsi qu’activité). 


L’image brute qui est sortie du workshop pro a été largement interrogée et transformée au fil d’une longue série d’itérations et de discussions avec les services de l’Etat, afin que le projet rentre dans le cadre réglementaire genevois. Elle fait l’objet d’une étude financière pour en a confirmer sa faisabilité. Le plan en gestation a ensuite été présenté à des architectes et urbanistes qui n’avaient pas fait partie du projet. Leur feedback et leurs idées ont permis d’avancer sur la forme du plan, qui a été présenté  à la commission d’urbanisme de Versoix. Les pilotes du projets pour la Ville de Versoix – Christophe Kobler (urbaniste chef de service) et Cédric Lambert (conseiller administratif), et pour l’Etat – Laurent Badoux (chef de projet à l’Office de l’urbanisme) ont été régulièrement informés de l’évolution de la forme et nous avons cherché à intégrer leurs nombreuses suggestions le plus scrupuleusement possible.

La forme que nous présentons ici n’est pas aboutie. Il s’agit d’un rendu intermédiaire et de nombreux aspects du projet doivent encore être approfondi. Il est possible que suite à nos interactions avec les différents services de l’Etat et d’autres professionnels nous soyons amenés à réviser la forme du plan, même si le processus et le programme sont validé. Il s’agit donc bien d’une forme encore mouvante et non figée qui va encore se préciser au cours des prochains mois.
 
FORME

Lors de la présentation publique du 19 décembre 2017, un habitant de Versoix a proposé que le plan soit évalué sur la base des orientations et des principes que nous venions d’exposer. Ces principes, issus du processus, expriment l’essence même du projet. Leur rôle est précisément de constituer un cadre qui permette à tous d'évaluer l'adéquation entre le programme et la forme du projet. Cette demande était donc légitime et en phase avec notre méthodologie. Nous présentons donc le plan à travers six principes validés en décembre :
 
Humain et naturel

Nous avons commencé par considérer deux axes principaux – ouest-est et nord-sud . L’axe ouest-est traverse le site en suivant la pente du terrain. En haut le quartier de villa et le cimetière; en bas l’Avenue Lachenal et peut-être un jour une passerelle qui permettrait de franchir les rails directement depuis le site. La connexion nord-sud permet d’accéder au site depuis la gare ou depuis du côté de la route de Sauverny. Nous avons cherché à ouvrir le site le plus possible à ses environs – l’intention est bien d’offrir un nouveau « cœur de quartier » aux riverains qu’ils puissent utiliser et s’approprier. C’est donc un quartier conçu non seulement pour ses futurs habitants, mais aussi pour tous les usagers qui pourront y passer. Le fait que ce quartier soit mixte (par obligation) – intégrant aussi bien des logements que des activités  - est ainsi valorisé. C’est un quartier vivant et actif que nous imaginons. 

Le quartier que nous proposons est entièrement respectueux de la topographie naturelle du terrain. Plutôt que de chercher à créer des plateaux artificiels à plusieurs niveaux, nous avons voulu que la pente devienne un élément qualitatif contribuant à l'identité du quartier. Les espaces publics s'enchaînent sur une distance de 70 mètres de l’ouest à l’est en descendant 4 mètres de dénivelé. Nous avons aussi préservé le plus possible les sols naturels dits primaires qui n’ont encore jamais été construits – puisqu’ils sont de grande qualité écologique. Finalement, nous préservons les trois arbres les plus importants et les plus appréciés par les habitants - deux sapins Nordmann et un marronnier - et en rajoutons un très grand nombre, notamment le long de l’avenue Lachenal à laquelle nous essayons de redonner son statut d’avenue.

Nous imaginons aussi que des toitures végétalisées pourraient servir de relais au riche écosystème Versoisien. Le site se trouve en effet à mi-chemin entre la Versoix verte des champs et de la forêt et la Versoix bleue des rivières et du Lac. La faune et la flore sont particulièrement foisonnantes à Versoix, et les Versoisiens y sont très attachés. Ils sont conscients qu’un cadre naturel bien géré peut améliorer la qualité de vie au quotidien. Nous pensons que le nouveau quartier peut non seulement préserver l’environnement, mais aussi avoir un impact positif sur l'écosystème. 
 
Densité sans immensité

S’il est un point qui ressort sans ambiguïté des discussions avec les riverains, c’est qu’ils désirent voir ni grande barre, ni grande tour. Ce sont bien ces aspects qui avaient incité un groupe d’habitants à proposer un référendum contre le précédent Plan Localisé de Quartier (PLQ). Comme on le sait plus de 60% des voix s'étaient prononcées contre le projet précédent. Outre la forme, les référendaires demandaient aussi un processus participatif. Si nous sommes en charge de ce projet de quartier c’est bien parce qu’ils ont été entendus. 

En revanche, il est ressorti des nombreuses discussions que nous avons eu avec les habitants que personne n’était opposé de principe à un projet de développement et qu’ils ne considéraient pas nécessairement la densité comme un problème en soi, si elle était à échelle humaine et qu’elle ne génère pas une augmentation du trafic automobile trop importante. 

Une densité à échelle humaine peut même apporter une certaine qualité urbaine – comme  c’est le cas  dans le Vieux-Bourg qui est apprécié de tous. Cette densité sans immensité permet aux voisins de se croiser et peut amener un peu de vie dans une partie de Versoix ou les gens sont parfois assez isolés les uns des autres – puisqu’un certain nombre d’entre eux vivent dans des villas ou des maisons mitoyennes. Cette distance est appréciable pour autant qu’à proximité existent aussi des opportunités d’interagir, de se connaître et de créer des liens sociaux.

Nous avons donc pris le parti de proposer cinq immeubles à tailles humaines plutôt que des barres ou des tours. La hauteur maximale que nous proposons pour les nouveaux bâtiments est R+4. Le seul immeuble R+4 est celui qui occupe le moins de surface au sol. Il se trouve au centre du site, proche du bâtiment Bianchetti/Rothschild (existant) qui monte à R+ 5.5. Ainsi il ne rentre pas en conflit avec le gabarit des villas, côté Dégallier. Cet immeuble pourrait être une propriété par étage et intéresser des familles désireuses de trouver un lieu à la fois aux portes de grands espaces naturels, convivial et empreint d'urbanité pour y vivre.

L’immeuble « Starters » monterait à R+4 coté rail et serait R+3 du coté donnant sur l’intérieur du site (donc une hauteur moyenne de R+3.5). L’immeuble triangulaire en bout de site que nous appelons « short-term » pourrait aussi monter un peu plus du côté des rails et redescendre du côté « quartier ». Cette configuration lui permettrait d’offrir des terrasses et une vue agréable à ses habitants. Une description plus détaillée des ces deux immeubles suit ci-dessous.

Ouvert et intime

L’urbanité de proximité et de qualité que les habitants souhaitent voir sur le site doit être ouverte sur le reste du quartier, tout en créant des espaces intimes et conviviaux où il fait bon se retrouver entre voisins et où l’on peut aussi croiser des passants et des visiteurs. Plutôt qu’un grand espace impersonnel entre les immeubles nous avons donc cherché à créer des lieux pouvant développer des atmosphères distinctes et pouvant servir à différents publics – tout en leur permettant de se croiser.

A la pointe ouest du site, nous imaginons un jardin qui offre à tous les riverains, descendant du bassin résidentiel, une entrée douce et verte à ce cœur de quartier. Ce jardin serait un lieu calme, respectueux du cimetière tout proche. Les deux grands sapins qui donnent déjà une identité solennelle à cette pointe du triangle seraient conservés et valorisés par la présence d’une végétation représentative de la flore locale. Nous imaginons que ce petit jardin intime pourrait être dédié aux bonnes relations de voisinage que M. Werner Zahnd qui habitait la maison du 6 chemin Dégallier incarnait auprès de tous ceux qui l’ont connu – et pourrait donc porter son nom. Ce jardin est aussi une hommage à la passion d’un grand nombre de Versoisiens pour le jardinage et la flore.

Un chemin piéton mènerait vers la place centrale en suivant la pente naturelle. La place, elle aussi naturellement inclinée, serait un espace de rencontre et de jeux sans programme fixe, que les voisins et les riverains pourraient s’approprier pour différents usages. L’activité au rez des immeubles avoisinants serait liée à la place. Une cuisine commune et un atelier d’invention (utilisables par tous) imaginés au rez de l’immeuble « starters » s’ouvriraient naturellement sur cette place et lui donneraient vie tout au long de l’année. Une description plus détaillée est donnée plus bas. 

En descendant, sur la droite se trouverait une place de jeux pour les petits qui serait à l’échelle du quartier. Cette place s’ouvrirait sur le rez ouvert de l’immeuble « Short-term » qui offrirait à tous un espace ouvert et couvert à proximité de l’école et de la place de jeux.

Depuis la place centrale, en suivant la pente naturelle, on arriverait à un espace plus minéral, ouvert à tous les publics avec une terrasse liée au restaurant au rez de l’immeuble Bianchetti/Rothschild (Mic Mac) et un terrain de pétanque. Ce terrain de pétanque, suggéré par une habitante, serait un lieu naturel de rencontre entre les générations.

Finalement, une autre place en face des rails serait dédiée aux adolescents qui cherchent souvent à se retrouver entre eux dans un espace public qu’ils peuvent s’approprier.  Cet espace serait utilisable pour des activités générant du bruit puisque les bâtiments autour devront respecter les normes sur les risques majeurs (liés à la circulation de convois dangereux sur les rails) et ne pourront donc pas avoir de fenêtres ouvrant du côté des rails. Leur façade devra aussi être protégée contre le bruit des trains. Nous imaginons qu’un skate park pourrait être créé à cet endroit. Cette place serait donc publique et ouverte à tous, tout en offrant un cadre où les jeunes peuvent trouver une forme d’intimité qu’ils recherchent.

Vivre et travailler

Le site est localisé sous une zone de passage d’avions et en bordure de voies de chemin de fer, ce qui le rend particulièrement vulnérable aux nuisances sonores. En même temps, il est situé dans un cadre agréable, à deux pas d’une école et de la gare. Il s’agit donc de concevoir un plan qui réduise les nuisance pour permettre de construire du logement. La pesée d’intérêt qui avait eu lieu lors du premier PLQ (2013) avait conclu qu’aucune nouvelle structure sur le site ne devait être exclusivement résidentielle. En d’autres termes, il est impératif pour chaque bâtiment d’être mixte et donc d’intégrer logements et activité.

Nous pensons que cette obligation règlementaire est une opportunité pour ce site de renouer avec la longue histoire de l’artisanat à Versoix. Nous n’imaginons pas nécessairement des activités artisanales de types traditionnels comme la poterie ou la menuiserie (bien que ces activités seraient bienvenues sur le site) mais plutôt de nouveaux types d’artisanats et d’activités – comme par exemple le développement de sites web ou des services. De plus les activités dans chaque bâtiment n’ont pas forcément besoin d’être commerciales. Nous imaginons que certains espaces pourraient être voués à des activités associatives – comme la cuisine commune qui pourrait être louée à des particuliers. Nous envisageons également des activités pouvant s’autofinancer comme l’atelier de bricolage et d’invention et l’espace de co-working (plus de détails ci-dessous).

Nous proposons deux bâtiments « live-work » qui permettront à des familles, dont l’un ou les deux parents travaillent depuis la maison, d’avoir une activité professionnelle dans une partie dédiée de leur logement. De nombreux Versoisiens travaillent déjà depuis chez eux. Le travail à la maison se développe rapidement en Suisse comme à travers le monde. Nous imaginons que ce type de logement à usage mixte correspondrait parfaitement à des consultants, juristes, médecins, sculpteurs, designers ou architectes. Ces deux bâtiments étant conçus spécifiquement pour des gens désirant travailler depuis la maison, ils pourront y recevoir des clients sans leur donner l’impression de les faire entrer dans un espace domestique. Le modèle pour ce type d’espaces mixtes sont les lofts ou ateliers d’artistes qui fonctionnent si bien dans les quartiers créatifs à travers le monde. Ce modèle a un précédent à Genève et est catégorisé comme logement à mixité intégrée (LMI). Il devrait donc être possible de le mettre en place sur le site.

Communauté et co-création

Nous avons relevé au fil de nos entretiens avec les habitants de Versoix qui ont grandi à Versoix et qui ont vu la commune se transformer en ville dans la deuxième moitié du XXe siècle, que beaucoup regrettent la convivialité et l’esprit de village qui y régnait autrefois. On se rappelle des soirées chez les voisins et des « soupes à l'oignon » avec lesquelles elles se terminaient. On se rappelle aussi des artisans qui faisaient vivre le vieux Versoix et qui ont majoritairement fermé leurs commerces en raison de la concurrence française ou fribourgeoise. Les boulangeries et épiceries étaient légion à Versoix, il y a quelques décennies. Ces commerces de proximité et cette atmosphère communale – même si celle-ci était parfois émaillée de disputes entre certains groupes – ont  disparu. Pour ceux qui vivent à l’ouest des rails, la Migros qui était située à la sortie du passage souterrain, était un des derniers lieux où on se croisait. Maintenant qu’elle a été déplacée aux Portes de Versoix, il ne reste – de ce côté - que le Mic Mac café où certains habitués se retrouvent encore.

Reconnaissant ce besoin flagrant, nous avons cherché à promouvoir les possibilités d’interaction et de lien social dans le futur quartier. Les espaces publics – ouverts et intimes – vont dans ce sens. Ils seront de plus en lien avec le rez-de-chaussée des bâtiments qui les bordent. Des espaces associatifs, tels qu’une cuisine communautaire, pourraient être gérés par des habitants et mis à disposition de professionnels et de Versoisiens désireux de les utiliser comme outil de travail ou pour organiser des évènements – par exemple des anniversaires. Ce dernier espace associatif se trouverait au rez-de-chaussée du bâtiment « Starters » et ferait le lien entre le skatepark, côté rail et la place triangulaire centrale.  De l’autre côté de ce bâtiment, nous suggérons un nouvel atelier de bricolage et d’invention inspiré par celui que M. Perréard a au rez de sa maison. M. Perréard,  la nonantaine, est né dans la maison construite par son père et y vit  encore aujourd’hui. C’est depuis cette maison  - où se trouvera le nouvel atelier -  qu’il a inventé de nombreux objets – comme par exemple le « Tack » qui permet de planter un clou sans effort. Son parcours nous inspire et sa passion pour les inventions et le do-it yourself est totalement dans l'ère du temps.

Nous imaginons le bâtiment « Starters » comme une résidence pour jeunes artisans, en fin de formation professionnelle désireux de se lancer en tant qu’indépendant ou de commencer leur propre entreprise avec quelques collègues. Ils pourraient résider dans ce bâtiment pour une durée de 1 à 6 ans et auraient accès à l’atelier et la cuisine. Apprentis électroniciens, designers, maquettistes, boulangers... ils auraient sur place le matériel nécessaire pour lancer leur pratique professionnelle.

Ces espaces seraient aussi ouverts à tous les Versoisiens et seraient donc des lieux d’échange et de rencontre intergénérationnels. Nous imaginons que pour cette population jeune, mais déjà en activité, Versoix serait un cadre idéal, à la fois proche de Genève, mais assez distante pour pouvoir se concentrer sur un projet professionnel en toute sérénité. L’idée de cet immeuble « Starters » nous a été en partie suggérée par un habitant de Versoix membre de la Fondation Officielle pour la Jeunesse (FOJ). Nous avons vérifié que ce besoin existe bien auprès de la FOJ. Il ne semble pas impossible d’obtenir des fonds pour ce genre de projet. De plus le PLQ doit offrir au minimum 30% de logements à loyer modéré et la commune est propriétaire d’une partie des terrains. 

Une population de jeunes professionnels pourrait amener une belle vitalité sur le site. Ils pourraient aussi sûrement s’accommoder de l’offre de transports publics existants, de deux roues et de quelques voitures partagés pour leurs besoin en mobilité. De plus, ces jeunes seraient sans doute d’accord pour partager certains espaces de vie (cuisine, salon, salle télé) en contrepartie d’un loyer abordable. Ceci permettrait d’augmenter la densité de population sur le site sans augmenter la surface de plancher ou le nombre de places de parking. La durée limitée du séjour des locataires de l’immeuble « Starters » (par exemple 1 à 6 ans) répond, d’une part, à l’objectif d’en faire bénéficier le plus grand nombre de jeunes, et d’autre part, il prend en compte le fait que, dû à des normes OPAM très restrictives, le front du bâtiment faisant face aux rails ne pourra sans doute pas avoir plus de 20% de fenêtres et que ces fenêtres ne pourront s’ouvrir en raison des risques d’explosion, de feux et de fuite de gaz pouvant provenir des convois en circulation sur les rails. 

Local et connecté

Finalement, notre plan reconnaît le fait que le potentiel du site serait pleinement exploité si le nouveau quartier était à la fois profondément connecté au tissu local – l’écosystème naturel et le voisinage – et au reste du monde. Nous nous sommes rendu compte qu’un grand nombre de Versoisiens, qu’ils soient établis depuis des générations, ou qu’ils soient arrivés plus récemment, ont des attaches globales. Il n’y a aucune contradiction entre la vie locale d’un quartier et son ouverture au monde. Un des grands désavantages du site, sa proximité de l’aéroport, est un avantage pour certains. 

Le site est extrêmement proche de la gare de Versoix et donc à quelques minutes de Genève et de Lausanne. En voiture,Versoix est aussi à quelques minutes seulement de la France et en bateau c’est toute la région Lémanique qui s’ouvre. C’est un lieu parfait pour ceux qui cherchent à la fois un cadre tranquille et convivial – notamment des familles ou des artisans – et une grande connectivité régionale et internationale.

C’est pourquoi nous envisageons un bâtiment « Short-term » qui ne soit pas un « appart hôtel », ni un hôtel, ni une pension. Le bâtiment «  Short-term » situé à la pointe sud du site – la plus proche de la gare serait conçu pour des Suisses ou des internationaux venant à Genève en mission de courte durée – pour un mandat à l’ONU, pour un projet de recherche universitaire, ou pour des affaires familiales. Ils pourraient rester sur place pour une durée limitée (par exemple entre 1 an et 3 ans), le temps d’accomplir leur tâche ou de trouver un lieu de vie permanent. Comme le bâtiment « Starters » celui-ci ne pourra pas avoir de fenêtres ouvrant sur les rails. Il est donc difficile d’imaginer des familles s’y installer pour le long terme. Par contre, cet immeuble pourrait être orienté sur l’intérieur du site et offrir une vue agréable et des terrasses communes aux locataires. Nous imaginons que ce bâtiment pourrait recevoir au rez-de-chaussée un espace de co-working pour les résidents et tous les Versoisiens désirant louer un espace de travail. Ceci contribuera encore à animer le site et cette partie de Versoix.

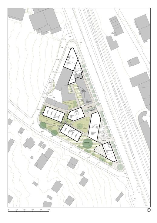
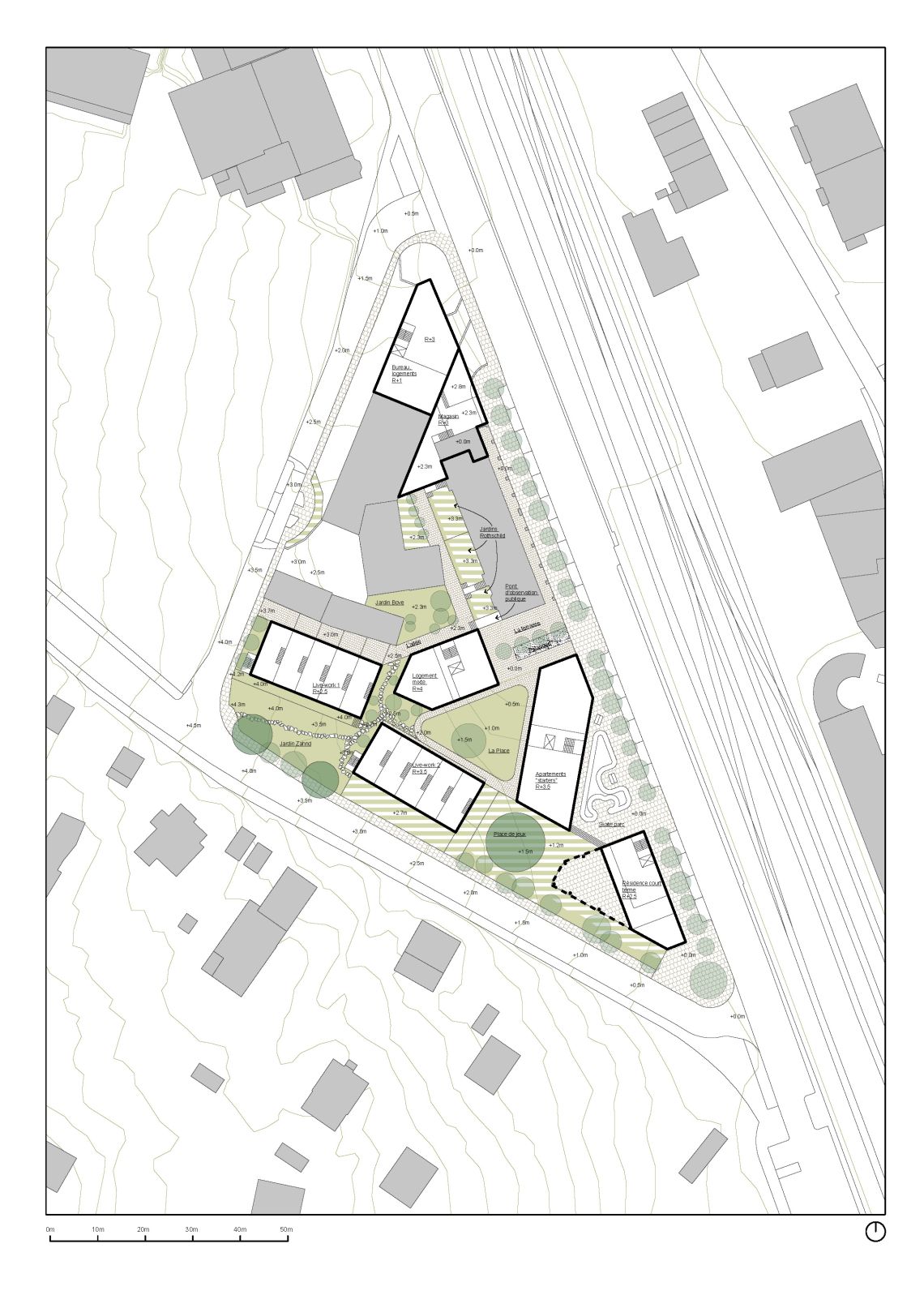
 La forme que pourrait prendre un PLQ issu d’un projet de quartier. 	Le plan localisé de quartier est un outil réglementaire utilisé par les services de l’aménagement genevois. Le plan présente un moindre niveau de détail et est accompagné d’un règlement et de ses annexe.
La forme que pourrait prendre un PLQ issu d’un projet de quartier. Le plan localisé de quartier est un outil réglementaire utilisé par les services de l’aménagement genevois. Le plan présente un moindre niveau de détail et est accompagné d’un règlement et de ses annexe.
Dessin d’ambiance pour se figurer l’organisation spatiale et l’impression de masse
Dessin d’ambiance pour se figurer l’organisation spatiale et l’impression de masse
Plan masse: proposition au 11 juin d’une forme urbaine s’inscrivant dans les principes et accueillant le programme
Plan masse: proposition au 11 juin d’une forme urbaine s’inscrivant dans les principes et accueillant le programme

Si le projet de quartier et sa traduction en plan ont été accueillis avec enthousiasme, la séance a été conclue par de nombreuses question précises et l’expression des préoccupations des participants, ce qui confirme leur implication.

  • Où se trouve le parking? 
    Actuellement pas situé sur le plan, mais on imagine une extension sous l’immeuble Starters du parking préexistant sous l’immeuble Rotschild avec une même entrée.

  • Quel est l’IUS du projet présenté? 
    Depuis le PLQ (refusé) précédent, l’IUS a été largement diminué, on atteint un indice entre 1.4 et 1.6 sur le projet actuel.

  • La hauteur de l’immeuble Rothschild? 
    R + 5.5

  • Tous les bâtiments de la même hauteur? 
    Les bâtiments les plus hauts font R + 4, côté des voies de chemin de ferre, sur le front urbain, les bâtiment les plus bas font R + 2.5 et se trouvent en face de la zone villa. La topographie crée une impression d’un max à la même hauteur, car le terrain est 4 mètres plus bas côté rail.

  • La hauteur des bâtiment peut-elle être garantie (limitée)?
    Oui, justement, le PLQ garantit les zones d’implantation et le gabarit (la hauteur) des bâtiments.

  • Quel sera le nombre d’habitants dans le quartier? 
    Environ 220 personnes - y compris ceux qui y vivent déjà.

  • Y-a-t-il déjà des échanges avec les promoteurs?
    Non, mais la commune et certains propriétaires pourraient développer eux-même. Nous réfléchissons à une convention public-privé pour le développement du quartier.

  • Quel est le statut des espaces communs? (Géré par qui?)
    Un certain nombre d’espaces publics pourraient être gérés par la Commune. Différentes conventions peuvent être imaginées, mais rien n’est encore décidé.

  • M.Clément, un propriétaire, n’est pas encore convaincu de la faisabilité (financière) du projet. Il aimerait que cela soit vérifié avant que le PLQ passe en force.
    Une étude de faisabilité financière basique démontre que le projet est viable mais une étude plus poussée doit être faite par les propriétaires.

  • Les autorités locales sont-elles prêtes à soutenir le projet?
    M.Lambert dit que les autorités l’accompagne et le soutiennent.

  • M.Lambert demande si il y a une place pour les personnes âgées dans le projet?
    Le public répond qu’il existe déjà de nombreuses infrastructures et qu’il faut renouveler la population avec des personnes dynamiques. D'autre part il y a un problème d'échelle pour les logement médicalisé. Ils ne sont viable qu'à partir d’un certain nombres de lits - donc une certaine taille de bâtiment qui dépasserait ce que a ete envisage sur le site jusqu'à maintenant.

  • Madame Simon demande ce qu’il en est du choix des matériaux pour les façades?
    Il lui est répondu que ce sont des choix architecturaux qui seront décidé à la DD, mais que l’avant-projet recommandera des matériaux durables et écologiques.

  • Comment le projet de quartier peut-il influencer les choix architecturaux?
    Par des recommandations, un accompagnement des maîtres d’ouvrages, un groupe de suivi issu du processus et le fait que les bâtiments soient réalisés par différents architectes.

  • Laurent Badoux précise le rôle du PLQ, c’est un règlement neutre. Le projet de quartier doit être porté par la commune et les propriétaires. Il faudrait même un engagement des propriétaire pour pérenniser le projet de quartier

  • M. Clément propose à urbz de prolonger le mandat pour pérenniser le projet.
    Urbz serait content de continuer à accompagner le projet, mais souhaite délivrer un avant projet qui fonctionne avec ou sans eux.

  • M.Lambert: Pour garantir le projet il faudrait trouver des outils. Il propose de faire une charte ou des principes dans le cahier des charges des constructeurs.

  • Où en est-on dans les étapes du projet? 
    On explique que le plan doit être validé par les services, puis traduit en PLQ. Qu’en parallèle il faut travailler avec les futurs développeurs pour garantir les principes et la mise en oeuvre du programme et travailler le plan financier. Une dernière séance publique est envisagée à la rentrée. Ensuite un groupe de suivi sera mis en place pour assurer la continuité du processus.

  • Commentaire sur le plan d’Henriette: Le parking à vélo est mal placé, elle le situerait plutôt où il y a le terrain de pétanque.
    La remarque sera prise en compte. Le programme de cette entrée de site, aux croisement du Chemin Degallier et de l’Avenue Lachenal doit encore être réfléchi. Les idées sont les bienvenues.

  • M. Yves Richard prend la parole en tant que président de l’association du patrimoine versoisien. Il remercie l’équipe pour leur écoute et d’avoir préservé et valorisé l’existant. Il explique que l’identité historique versoisienne, marquée par l’artisanat, se retrouve dans ce projet de logement pour les jeunes indépendants. Il souligne qu’en tant que membre du comité de la FOJ, il voit bien le besoin pour ce public spécifique. La salle applaudit.

  • M. Clément se demande de quel façon la FOJ peut contribuer au projet financièrement. M. Richard nome quelques fondations qui soutiennent la FOJ.

  • Mademoiselle Simon prend la parole, elle soutient le projet pour l’immeuble d’étudiant, elle rappelle qu’il faudrait à Versoix plus d’infrastructure pour les jeunes et plus de jeunes.

  • Des questions ont été posées quant à la réalisation éventuelle de la passerelle.
    Nous expliquons ce que nous savons, que notre projet est pensé pour ne pas bloquer le projet, mais que nous n’avons pas les moyens de mener également cette étude.

  • Certains sont inquiets et craignent qu’une fois le PLQ passé en force, le projet se démantèle, ils mettent une grosse pression sur la commune pour garantir le projet de quartier.

People involved

Matias
Echanove
Amin
Khosravi
Benoît
Beurret