One Space Two Places

Authors

Rahul
Srivastava
Matias Echanove
Matias
Echanove

One Space Two Places

Authors

Rahul
Srivastava
Matias Echanove
Matias
Echanove

By Matias Echanove and Rahul Srivastava
First published in FuturArc Singapore, 2018

Homegrown neighbourhoods

The Kule family lives in a small brick house on a hillside in the suburbs of Mumbai. They are part of a majority of Mumbaikars who reside in settlements officially designated as “slum areas”. The Kules belong to a farmers’ caste from the Konkan, a region that stretches for hundreds of kilometers from Mumbai to Mangalore along the Arabian Sea. Parshuram Kule, the patriarch, came to Mumbai over 50 years ago to finish his primary education, leaving behind his ancestral village near Chiplun 250 km away. He never lost touch with the village and made sure his children also developed strong bonds. With savings from Mumbai, the Kule family purchased farmland, which they cultivate. They also opened a shop on the roadside, and built two houses where Parshuram now resides with two of his four children. 

When Parshuram first arrived in Mumbai he stayed with relatives and only moved out when he secured a job as a mechanic in a factory. As soon as he could afford it, he bought a plot of land from a farmer near his factory, in the neighbourhood of Bhandup, in the northeast of Mumbai. Him and other natives from his region were among the first settlers on what was then a forested hill. They used skills acquired in the village, to build small mud and straw huts. They levelled the ground and built wells and pathways. When Parshuram first moved in, the area looked very much like the region he came from – a jungle dense with wild life, including snakes, monkeys and panthers. Today it is a highly populated suburb in the sprawling metropolis. 

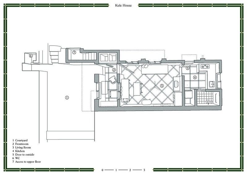
Parshuram Kule’s small house was rebuilt once in the 1980s and then again in the 2000s. It is now a 15 feet x 20 feet G+1 brick and cement structure opening to a courtyard, with a well and a cages to keep chickens and ducks. Since it was built on a slope, he made sure that the foundations were strong. Parshuram became well-known in his neighbourhood for his ability of making monsoon resistant structures. The furious Mumbai rains could wash away houses built on shaky ground. He remembers how a particular resident, who declined to follow his step-layered style of construction, had his house destroyed twice over.

The Mumbai house is now occupied by Parshuram’s son and daughter in law, along with their son, his wife and their young daughter. Parshuram has built a grand house near his native village where he now lives with his other son and one of his three daughter – both of whom were born in Mumbai but choose to move to their ancestral village. The relatives in Mumbai manage the daily operation of a spice business that Parshuram started with his son. Both sides travel regularly between the city and the village and maintain very strong familial and business bonds. 

Mumbai grew around Bhandup, which changed and improved over the years. More people built and consolidated their small homes using industrially grade construction material. The area now has clean pathways with stone paving. Wells are looked after and there is also a significant presence of trees and vegetation, all of which are packed in a very dense habitat. Over the years, electricity, and roads, sign boards including one referring to the neighbourhood as Konkan Nagar, (Konkan Town) came up. This happened as political parties began to patronise the settlers. Parshuram saw his own occupancy rights legitimatised in the 1990s. Now his home in Bhandup is legally ‘his own’ – though he technically cannot sell his rights to anyone else. But since his sons live there (and the adjacent home which they got some years ago) the home is well used. 

Bhandup in Mumbai - The first houses were built fifty years ago on what was then a forested hill. It is now a dense homegrown settlement, notified as a “slum area” by the municipal corporation. Photo by Ishan Tankha for urbz. 

A well and patio in front of the Kule family’s house in Bhandup. What looks like a slum from outside is a village-like neighbourhood when experienced from the inside. Photo by Ishan Tankha for urbz.

Off

                                                                                                  Drawing and plan of the Kule family house in Bhandup.

Viewed from afar, Bhandup is reminiscent of Brazilian favelas, except that the violence is contained by tightly knit community networks and institutions. With little help from the government, the settlers built homes, schools, community halls and temples. They organize festivals and ceremonies perpetuating ancestral rituals and traditions. Hens and chicks can be seen grazing along narrow pedestrian pathways. Colourful houses decorated with benches and tropical plants are lined along small streets and piazzas. The entire neighbourhood was developed incrementally, following the topography, without any master plan, by successive waves of migrants. A few coconut trees rise above a sea of sloping roofs, many of which have Mangalore tiles that are typical of the Konkan region. 

In many ways, Bhandup embodies the rural origins of its inhabitants. However, the neighbourhood, like other such homegrown settlements in Mumbai, is also intensely urban. It is densely built with bricks, concrete and steel. Residents are actively involved in city and national politics. They have a strong voice in municipal elections as they often vote along communitarian lines. At the same time the demographics of Bhandup reflect the cosmopolitanism of Mumbai. Marathi is spoken in its streets with various regional accents. One can also get by with Konkani, Hindi, English and other regional languages. The kind of educational and professional opportunities that Mumbai provides is unmatchable in the village. Many people have government jobs, run small businesses or are employed in large corporations. Most families have reached middle-class status in income and education levels. Electricity rarely goes off nowadays and most homes have running water and access to toilets. 

The only thing that holds neighbourhoods like Bhandup back is the bad state of public infrastructure and services. Authorities feel that the only way ahead for homegrown habitats is demolition and redevelopment in the form of mass housing. Settlements officially designated as ‘slum areas’ have been aggressively preyed upon by developers in Mumbai, who, under the Slum Redevelopment Scheme can ‘rehabilitate’ slumdwellers into hyperdense high-rise buildings in exchange for Transferable Development Rights, which they can use in situ or in other parts of the city. While technically the concerned dwellers must agree to sign up, the scheme has led to the emergence of a builders’ mafia, which knows how to secure consent. The net effect of this policy is to turn low-rise, high-density, mixed use neighbourhoods into mass housing of the worst kind. It also slows down the improvement of homes that otherwise happens spontaneously in homegrown neighbourhoods. Moreover, pending development shemes give an excuse to the municipal authorities not to provide or maintain vital infrastructure such as sewage and public toilets.

Eligibility for a rehab unit is not guaranteed to all slum dwellers. And even those who are eligible may not want to live in a tiny flat (about 300 sq. ft.) from which they can’t run a business. The threat of redevelopment, which is always looming over Bhandup and other such settlements, helps explaining why most families keep investing their savings in ancestral villages hundreds of kilometres away. However, while many migrants and their decedents project their future in the village, especially as it keeps improving and developing, they also want to keep one foot in the city. 

The Kule family on its way from Mumbai to their village near Chiplun in the Konkan, 250 km away - and a 4 to 5 hours journey. A single ticket costs about INR 250 (USD $3 to $4). Photo by Ishan Tankha for urbz.

Interactive installation at the Bhau Daji Lad Museum in Mumbai, which was part of urbz’ Mumbai Return exhibition. We asked people to connect their neighbourhood on a map of Mumbai to their villages on a map of India with a thread. This installation allows us to see urban-rural connections that allude statistics.

Circulatory urbanism

Third or fourth-generation migrants value the contact with nature and village life, but they also want urban comfort and opportunities: brick houses with modern kitchens and ‘western’ toilets. Paradoxically, the urban lifestyle to which they aspire to may be out of reach in the city, where they must live in crowded neighbourhoods that are redlined by municipal services. It is in the village that they can build the modern urban house of their dream, which they can’t afford in the city. Konkan villages receive massive financial flows from the city – not only Mumbai but also other Indian cities and from abroad, especially from the United Arab Emirates where millions of Indians are employed. Money is invested in land and homes primarily, but also in water systems, temples and schools. Sometimes it is used to help deserving children pursue their studies away from the village. Many also invest in farming tools, vehicles, or help their relatives start a business. 

Circular migrants are perhaps today the first actors of urbanisation of India. User-driven development has been somewhat recognized as an important phenomenon in cities. Homegrown settlements around Bhandup are the first sight the city offers to visitors who land in Mumbai. Other such neighbourhoods – Dharavi in particular – have been featured in movies, documentaries and books. They are usually portrayed in a dystopian way as the city’s failure to modernize. Little attention has been given to their economies, in particular to the way artisanship and the local construction sector contribute to improve the neighbourhood from within. Their role in maintaining village cultures in the heart of the city is hardly even acknowledged. Likewise user-generated forms of urbanization have been completely unaccounted for in Indian villages, because they are small, scattered all over the country and out of the public perview. 

The story of the Kule family is the story of hundreds of millions of migrants, who have settled in towns and cities while maintaining active ties with their villages hundreds of kilometres away. It is the untold story of a user-generated urbanization that eludes statistics. Officially India, which is still about 70% rural, lags far behind China as far as urbanization rates are concerned. This preoccupies the government, which endorses the orthodox view that it is only by increasing the statistically urban that the country can achieve first-world standards. The mantra of development through urbanization, however, rests upon assumptions that are challenged by a new generation of researchers. 

The Kules in Kondhe Village in Ratnagiri.
Parshuram (seated), from left - Vasanti, Ramdas, Laxmi, Shreysh, Pratiksha, Deepak, Umesh, Dhruva and daughter Sara.

The Kules in Bhandup in Mumbai
Ramdas, Laxmi, and their son Deepak, his wife Dhruva and grandaughter Sara in their family home in Bhandup, Mumbai.

Neal Brenner who runs Harvard’s Urban Theory Lab and Christian Schmid at ETH in Zurich have argued that the definition of the “urban” used by international agencies, governments and the vast majority of academics, is at best problematic and at worst totally biased. To start with, the statistics used by the Indian national census bureau are unreliable. Different states use different parameters and a huge number of small towns with populations over 5,000 people are not classified as urban (Benner and Schmid, 2014). But at a more fundamental level, they argue that “The urban can no longer be understood with reference to a particular “type” of settlement space, whether defined as a city, a city-region, a metropolis, a metropolitan region, a megalopolis, an edge city, or otherwise.” (Brenner, 2017). It is not a specific state, typology, or archetype, but a prevailing condition that spreads through infrastructure, communication, technology, the market and political systems. There is no space out of the urban anymore – we have entered the era of what they call “planetary urbanism”. 

Our own ethnographic and architectural research in Mumbai and the Konkan, conducted over the last five years, demonstrate that simple urban-rural binaries are missleading. Like the anthropologist Anthony Leeds (1994), we observe that the rural has become a subset of the urban. According to him the rural cannot be reduced to the ‘non-urban’ in so far as it is under the financial, technological and institutional influence of cities. It is important to note that in India villages also exert influence on cities – as people, ideas and institutions also keep flowing from the former to the latter.  

Our understanding of the urban departs from neo-marxists critics of the urban condition as the ultimate form of captalist egemony. It also rejects the notion held by international agencies and governments that urbanization is synonymous with development. We believe that the urban cannot be reduced to either a negative –the destruction of traditional lifestyles and natural resources– or a positive – access to higher living standards in the form of modern amenities. The kind of urbanization we observe is based on community networks and mobility. A home in each the village and the city allows families to establish life-long strategies based on the movement from one to the other. Two places, one space. These movements are the pulse of an urbanisation that eludes statistics. We coined the term ‘circulatory urbanism’ to encapsulate this phenomenon.  

The kind of urbanization we are describing stretches back and forth from the city’s homegrown settlements to remote villages. It blends together urban and rural and confuses academics, architects, planners and policy-makers, who usually prefer to dismiss it altogether as backward or informal. This is unfortunate, because a better understanding of circulatory urbanism and homegrown habitats in cities and villages – and the kind of social and physical mobility that drives their development – could pave the way for a far more innovative and sustainable development. 

 

Urbanizing villages

What we see happening in most Konkan villages is striking. This is not the tabula rasa model of development fuelled by speculative or political interests (elements of which have crept along the coastal beach-belts and cities). It is rather an incremental transformation of traditional structures and lifestyles connected to the history of the people who navigate between urban and rural worlds. Just as they bring in their rural lifeworlds into the city’s fabric, constructing habitats from scratch for example, they also take back their urban experiences and infuse it into their ancestral villages. 

These transformations are particularly apparent in the architecture emerging in villages, which bring urban themes and aspiration to the next level of creative expression. Many families have shifted from building houses in stone, bamboo, hay, mud and cow dung to building with bricks, concrete, steel and tiles – most of which is prefabricated. With the rise of ecological consciousness and a keener awareness of the limitations of industrial materials, we also observed that some people were going back to traditional materials, while innovating on the design. An increasing number of families also build modern kitchens and toilets in their houses. The development of water infrastructure is typically an effort that extends beyond single families, and involves several houses around, all of whom contribute through labour or investment.

The same people who, in the city, are extremely restricted in their home’s appearance, because of limited spaces and the risk of demolition, can freely express themselves when they design their village homes. As a result we witness an explosion of colours and styles worthy of the most extravagant Bollywood productions. Indian villages are living laboratories for contemporary vernacular architecture. Every community takes inspiration from specific sources – a Buddhist temple that mixes and merges Nepalese and Japanese elements with Vastu-style colour systems. In Muslim enclaves houses are often ornamented with domes and glass facades reminiscent of Dubai – where so many villagers have gone to work. 

A quintessential architectural typology from Mumbai, “the chawl” has made deep inroads into villages throughout the Konkan. Chawls are rows of rooms lined along corridors with shared washrooms on every floor. Chawls were modelled on army baracks and imported to India first by British colonialists and then used by industrial mill owners to accommodate their workers, many of whom came from the Konkan region. It is very symptomatic of the city’s infrastructure for temporary accommodation. In Mumbai the chawl was eventually absorbed into the city’s scarce affordable housing stock. However, the typology is known primarily as associated with workers tenements. We have seen the chawl reproduced and reinvented in various villages to accommodate either migrant labourers from other parts of India, or as a way to accommodate joint-families living in the city but who want to keep a room in the village. 

Inhabitants use a range of different resources and strategies to bring about incremental improvements wherever their live. Dual household family structures with one set-up in the village and the other in the city is a widespread modus operandi. If we value the participation of residents in the production of their own habitat, then we should pay very close attention to the ongoing transformation in the Indian landscape – and to the processes at work. A better understanding of existing residential strategies in cities and villages may well highlight the need to promote better access to cities. 

The most urgent may not be the erradication of ‘slums’ and the construction of more of the same inadequate rehab housing. It may rather by the preservation of existing homegrown settlements and the provision of more ‘accommodations’ providing an entry point to the city for those who in search of opportunities. Unfortunately, India seems to busy admiring other models of development to realize what is going on in its own backyard. While China is busy supersizing its cities and skyscrapers – pushing for a speculative sprawl that transforms rural regions into urban deserts – India could promote a networked urbanization, which preserves the landscape between villages and cities and encourages regional mobility and local initiatives. 

The first house in Ukshi village to have been built in concrete. Its owner Ashok G. Jadhav lives half of the time in Ukshi and half in Mumbai where he once worked as a bus ticket controller. Photo by Ishan Tankha for urbz

A Buddhist temple built by a Dalit community (ex-untouchables caste) with remittance from their relatives in Mumbai in the village of Ukshi, Ratnagiri District, in the Konkan Region. Photo by Marius Helten for urbz. 

A newly built “chawl” type house built with a local stone called laterite, which is perfectly suited for the hot and humid climate of the Konkan region. The house, which is modeled on workers’ barracks typical of Mumbai, has rooms for 6 brothers and their families. Only one of the brother is permanently based in the village. Photo by Marius Helten for urbz. 

The Takle family’s new house in the village of Songiri. The aspirational urban house one cannot afford in the city is built back in the village. Akshay, on a short visit from Mumbai tests the mobile phone reception from the house. Just outside, we see Shantaram seated on the porch. He is the family’s patriarch who retired in the village after decades spent in Delhi and Mumbai.

Yogita Takle, Akshay’s mother, takes a photo of the view to send back home to Mumbai.

Off

                                                                                                      Drawing and plan of the chawl-like house in Ukshi 

Off

References

• Brenner, Neil. Critique of Urbanization: Selected Essays, Bau verlag, 2017. 

• Brenner, Neil and Schmid, Christian - The ‘Urban Age’ in Question in International Journal of Urban and Regionalr Research. Volume 38.3, May 2014. Urban Research Publications Limited

• Leeds, Anthony. Cities, classes, and the social order. New York: Cornell University Press, 1994.